Katalog › ŽALUZIE › Venkovní ›
žaluzie Z 90
Venkovní žaluzie Z 90
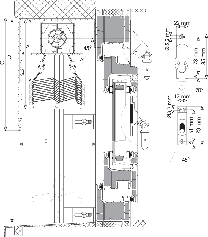
Venkovní žaluzie Z-90 s vedením ve vodících lištách umožňují plynule regulovat intenzitu světla v interiéru a současně odstíní až 85% slunečního záření a tím zabraňují přehřívání vnitřního prostoru. Lamely o šíři 90 mm mají tvar písmene Z a v zavřeném stavu vytvářejí celistvou plochu, která zaručuje dokonalé zastínění. V lamelách je po celé délce zaválcované těsnění, které zaručuje bezhlučný chod žaluzie a zvyšuje termoregulační efekt. Ovládání žaluzie je možné pomocí kliky nebo elektromotoru. Vyššího komfortu lze dosáhnout napojením do automatiky reagující na slunce a vítr.
Venkovní žaluzie s vedením ve vodících lištách mají větší odolnost v silném větru a jsou méně hlučné než žaluzie s vedením na lanku. K tichému chodu žaluzií přispívá těsnění, které je ve vodících lištách. Venkovní žaluzie jsou také podpůrným prvkem pro zabezpečení domu proti vloupání.
Horní profil je vyroben z pozinkovaného plechu nebo z hliníku. K zakrytí horního profilu a vytaženého svazku lamel může být použit hliníkový krycí plech dodávaný v libovolné barvě dle RAL nebo v eloxu. Vodící profily a spodní profil nabízíme v eloxu nebo v libovolné barvě dle RAL.

Základní technické parametry:
Maximální šířka žaluzie: 500 cm
Maximální výška žaluzie: 450 cm
Maximální šířka spojených žaluzií: 8 bm (ovládaných motorem)
| Typ žaluzie | Minimální šířka žaluzie | Maximální plocha žaluzie |
| Z-90 ovládání klikou | 40 cm | 9 m2 |
| Z-90 ovládání motorem | 60 cm (55) | 14 m2 |
Spojování žaluzií:
Na jeden pohon lze spojovat i více žaluzií. Maximálně však 3 žaluzie na jeden pohon - při uložení motoru uprostřed sestavy.
Musí však být dodrženo pravidlo, že na každou stranu od motoru může být maximálně 5 ložisek (otočný mechanizmus).
Materiál žaluzií:
lamely - hliníkové, oboustranně barevně upravené, vyválcované do tvaru Z se zaválcovaným těsnícím profilem, šířka lamel 90 mm
horní profil - 56 x 58 mm z pozinkovaného ocelového plechu nebo z extrudovaného hliníku
spodní profil - v šířce lamel z extrudovaného hliníku
vodící profily - 20 x 20 mm z extrudovaného hliníku
krycí plech - ohýbaný hliníkový plech o síle 1,5 mm nebo 2 mm
textilní nosiče a pásky - ze speciálních syntetických vláken, barva šedá nebo černá









